
Post-Production Facility·Van Nuys, CA
King Soundworks
Overview
Project at a Glance
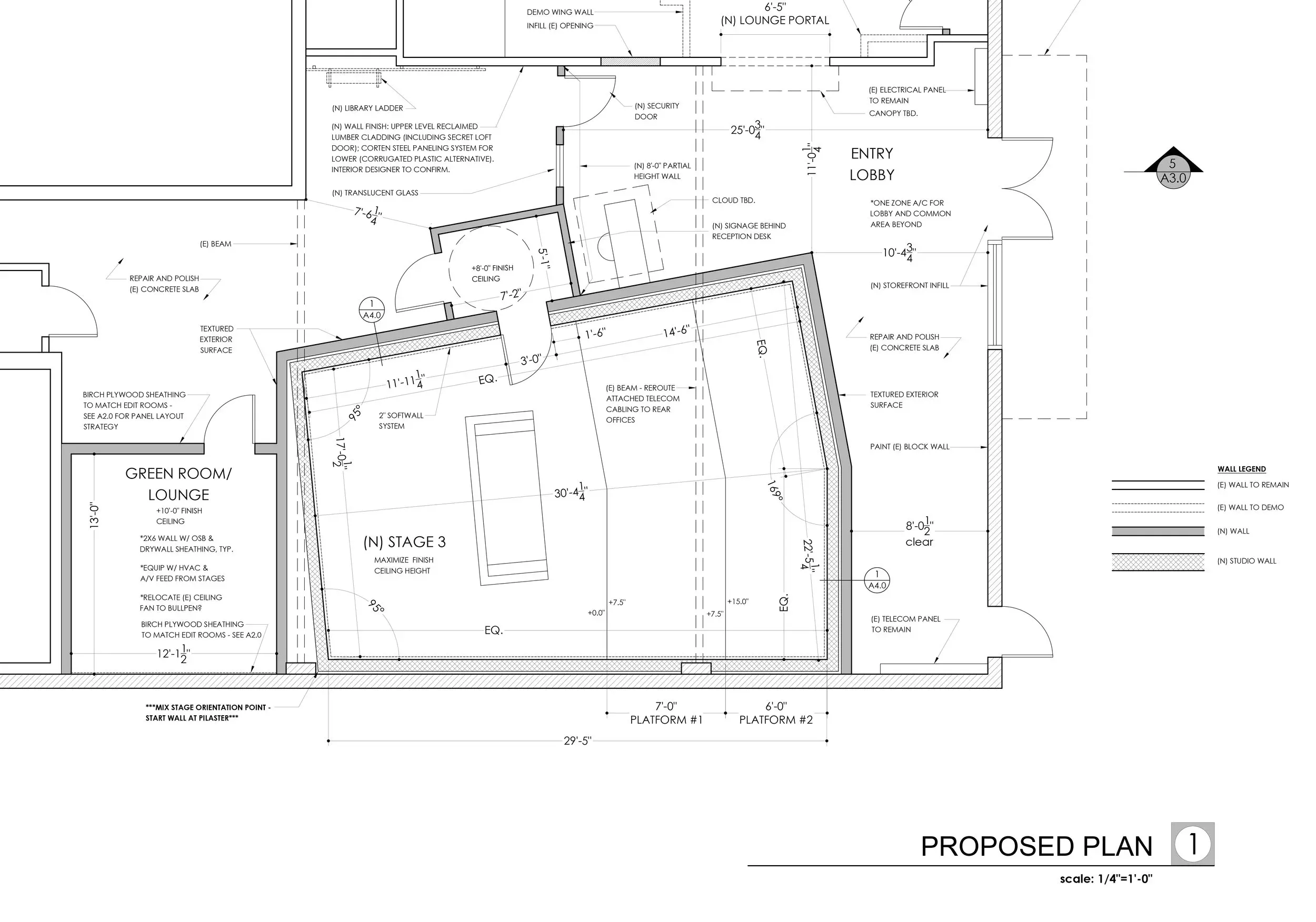
Renovation to an existing post production facility with new mix stage and edit room additions.
Project TypePost-Production Facility
Size5,500 sq ft
Program3 mix stages, 3 edit bays, lounge/green room, machine room, kitchen, lobby
LocationVan Nuys, CA

Services Provided
DesignAcousticsConstruction Administration
Results
Project OutcomesMeasuring success
The completed facility exceeded all expectations. Since completion, the studio has hosted sessions for multiple platinum-selling albums.
01
5,500
sq ft
02
3
Mix Stages
03
3
Edit Bays
Team
Project Team
Architect
Scott DeLoache, AIA, LEED GA, NCARB
Acoustician
Ken Goerres
Interior Designer
Suzanne Donegan
Contractor
Carlos Sandoval
Gallery
Project GalleryVisual journey through the space

Mix Stage 1 seating area

Stage 1 Seating

Stage 1 Screen Wall

Stage 1 View

Stage Detail

Edit Bay

Console Area

Floor Plan
Next Steps
Ready for your own project?Let's create something extraordinary
Every great studio starts with a conversation. Share your vision and we'll help bring it to life.
Free consultation
Custom design solutions
Turnkey delivery